Glazing Bars and Beading for Sash Windows
Glazing Bars and Timber Beading for Sash Windows
What Are Glazing Bars and Timber Beading?
Glazing bars, sometimes referred to as muntins or sash bars, are used to visually divide a single sash into multiple panes. This traditional feature is often seen in Georgian and Victorian sash windows and continues to be specified in conservation area projects.
Historically, glazing bars were essential due to the difficulty of manufacturing large panes of glass. Today, they are primarily used to replicate the appearance of traditional multi-pane windows while using modern glazing technology.
At Sash Window Shop, we offer astragal glazing bars—fitted to both the exterior and interior faces of the glass. These are combined with a built-in duplex spacer bar system inside the double glazing unit. The spacer bar is colour-matched to the paint finish, creating the impression of a traditional through bar while maintaining thermal performance. This allows you to achieve a heritage appearance without compromising on energy efficiency.

Available Mould Profiles
Ovolo Profiles
- 17mm Ovolo Mould
- 20mm Ovolo Mould
- 22mm Ovolo Mould
- 26mm Ovolo Mould
- 28mm Ovolo Mould
- 32mm Ovolo Mould
Lamb’s Tongue Profiles
- 17mm Lamb Mould
- 22mm Lamb Mould
- 26mm Lamb Mould
What are Ovolo Moulds?
The ovolo mould is a classic rounded profile that has been used in joinery and window design since the late medieval and Tudor periods. Its smooth convex curve offered a practical way to soften sharp timber edges while providing a pleasing decorative detail. By the 17th and 18th centuries, the ovolo became a defining feature of Georgian sash windows, where it was commonly applied to glazing bars and beading to frame the glass securely and with elegance.

What are Astragal Glazing Bars on Sash Windows?
Astragal bars are fixed to the surface of the glass on both sides of the sash. Internally, a duplex spacer bar is sealed inside the double-glazed unit. This gives the appearance of individual panes, while keeping the sash window energy-efficient and suitable for modern building standards.
We offer several traditional astragal configurations that are frequently requested in conservation area applications, including Georgian grids and vertical or horizontal bar layouts.

What Are Timber Moulds?
Timber mouldings, also known as glazing beads, secure the glass inside the sash from the interior side. They are part of the internal joinery detail and come in a selection of profiles and sizes to suit your preferred style.
Choose from Ovolo or Lamb’s Tongue profiles, available in sizes ranging from 17mm to 36mm. These are supplied spray-painted to match your chosen window colour.

What are Lambs Tongue Moulds?
The lamb’s tongue mould developed during the 18th century as tastes shifted towards more refined architectural details. Recognisable by its subtle sweep and pointed return, it resembles the tip of a lamb’s tongue, giving it its name. This profile became popular in late Georgian and Victorian joinery, often used on sash windows and doors to add character without excessive ornamentation. Today, the lamb’s tongue mould continues to be valued for its heritage connection and understated period charm.

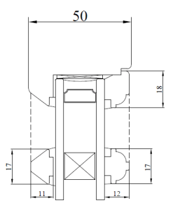
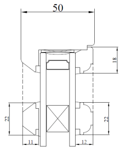
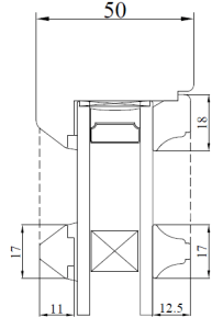
Ovolo Mould Glazing Bar Options

17mm Ovolo Mould

22mm Ovolo Mould

26mm Ovolo Mould
Lambs Tongue Mould Glazing Bar Options

17mm Lamb Mould

22mm Lamb Mould

26mm Lamb Mould

Our quality and service are very important to us
What our Customers say
“We worked with Sash Window Shop to replace wooden sash windows for our conservation-area property. Brett and the team were fantastic start to finish – going out of their way to ensure we were happy and felt taken care of. We would thoroughly recommend them and will be contacting them in the future should we have any more window needs.”
Nic Manias
get in touch today
We'd love to hear from you
If you have any questions or would simply like some more information about our joinery then simply fill in the form below and we will be in touch.
